(2009年)濰坊華東房地產新世紀商城工程改造設計
(2008年)青島奧帆賽場31號東西地塊商業中心
魯西化工廠銅洗框架減震設計
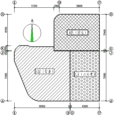
(2008年)無棣縣休閑廣場建筑群
(2009年)濟南市小廣寒影劇院保護性修繕工程
(2011年)肥城石橫特鋼廠出鐵廠,溫度引起梁開裂
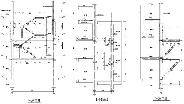
(2011年)臨沂機場老航站樓改造工程
(2012年)青島某建筑地下室上浮
(2015年)山東百年電力3#爐電除塵器土建部分加固工程
(2015年)濟南成豐面粉廠原廠房北半部分加固工程
北京和諧廣場(六里橋大廈) 改造加固設計-加固改造設計
濟南華聯嘉華購物廣場增層加固改造設計-加固改造設計
地址:濟南市歷山路96號山東建筑大學(和平校區)
電話:(0531)86367232
傳真:(0531)86993042
山東建固
建大加固院
Copyright ? 2022-2027 山東建筑大學工程鑒定加固研究院有限公司 版權所有 魯ICP備17025597號-1